unser Dorfgemeinschaftshaus
Sie planen eine Feier, Versammlung oder ein Seminar mit vielen Gästen?
Dann ist unser Dorfgemeinschaftshaus als Veranstaltungsort genau richtig für Sie.
In den Jahren 2017 und 2018 aufwändig renoviert und umgestaltet, bietet das Dorfgemeinschaftshaus der Gemeinde Etzleben Platz für 60 Personen und kann für vielfältige Veranstaltungen genutzt und gemietet werden.
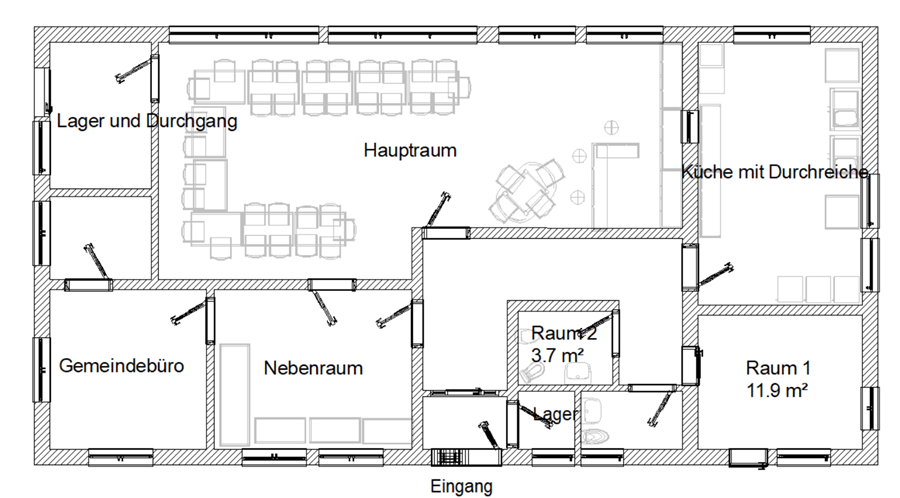
Das Dorfgemeinschaftshaus besteht aus einen großzügigen Hauptraum mit Theke nebst Kühlschrank und einen Nebenraum, ideal zum Aufstellen Ihrer Buffets.
Inbegriffen ist die Nutzung der Küche, welche mit einer Durchreiche zum Hauptraum und verschiedenen Küchengeräten versehen ist. Für Gäste und Besucher stehen zwei Toiletten zur Verfügung.
Der auf der Rückseite des Gebäudes befindliche umzäunte Kinderspielplatz mit Terrasse rundet das Angebot ab.
Grundlage für die Nutzung ist die Benutzungsordnung
der Gemeinde Etzleben, welche die kostenpflichtige Nutzung
für Personen aus Etzleben (Mo. bis Do. - 25 EUR/Tag, Fr. bis So. - 50 EUR/Tag)
und
für auswärtige Personen (60 EUR/Tag)
zzgl. einer Kaution von jeweils 100 EUR vorsieht.
Als Ansprechpartner der Gemeinde vor Ort steht Ihnen Frau Lange oder Frau Weißgerber zur Verfügung.
zur Ausstattung
| Bezeichnung | Anzahl | Bemerkungen |
|---|---|---|
| Stühle | 60 | |
| Tische | 10 | 120x80 cm |
| 3 | 120x60 cm | |
| 2 | 80x80 cm | |
| 1 | oval 150x110 ausziehbar auf 210x110 | |
| 1 | 240x70 cm | |
| Kühlschränke | 4 | hiervon einer im Hauptraum, drei in der Küche |
| Tiefkühler | 2 | in den Kühlschränken integriert |
| Geschirrspüler | 1 | |
| Herd mit Backofen | 1 | |
| Kaffeemaschinen | 2 | |
| Wasserkocher | 1 | |
| Geschirr/Bestecke | 60 | als Sets |
Buchungsanfrage
Bitte beachten Sie, dass Sie mit dem Senden Ihrer personengebundenen Daten in die Speicherung und Verarbeitung dieser einwilligen. Zum Datenschutz lesen Sie bitte hier.
Die Gemeinde Etzleben hat eine Benutzerordnung erlassen. Diese können Sie hier abrufen.
Wie geht es dann weiter:
Ihre Kontaktanfrage wird durch etzleben.de an die Gemeindeverwaltung Etzleben als Eigentümer des Dorfgemeinschaftshauses weitergeleitet und bearbeitet.
Natürlich können Sie auch den nachfolgenden Antrag als PDF-Datei einfach ausdrucken und ausfüllen. 
